Нежилые помещения №1000 (совокупность по...

№ 947774Размещено: 05.02.26 11:09
Республика Татарстан
Описание
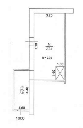
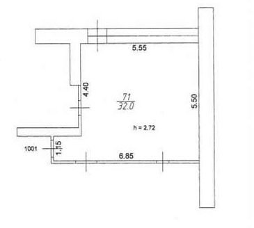
Нежилые помещения №1000 (совокупность помещений №№13-14), №1001 (совокупность помещения №71), этаж 1, лит.А, к.н. 16:50:011509:10, общей площадью 60,5 кв.м, расположенные по адресу: РТ, г. Казань, ул. Татарстан, д.1. Целевое назначение: для организации питания (буфет). Срок действия договора – 11 месяцев.

Нежилые помещения №1000 (совокупность помещений №№13-14), №1001 (совокупность помещения №71), этаж 1, лит.А, к.н. 16:50:011509:10, общей площадью 60,5 кв.м, расположенные по адресу: РТ, г. Казань, ул. Татарстан, д.1.

Кадастровый номер объекта недвижимости (здания, сооружения), в пределах которого расположено помещение: 16:50:011509:10
Общая площадь: 60.5 м^2 общ. пл
Расположение в пределах объекта недвижимости (этажа, части этажа, нескольких этажей): 1

Местонахождение имущества: Респ Татарстан, г.о. город Казань, г Казань, ул Татарстан, дом 1
Категория объекта: Нежилые помещения
Форма собственности: Собственность субъектов РФ

Вид торгов : Аренда
Текущая цена:
26 510 ₽

Начало приема заявок
04.02.26 09:00
Оконч. приема заявок
04.03.26 17:00
Начало торгов
10.03.26 09:00

Похожие лоты

Московская область
Публичное предложение
20 970 000 ₽
Лот №1 Жилой дом, площадь 182,8 кв.м., назначение: жилое, к...
Торги до: 28.06.26 23:59
Позвонить
Иркутская область
1/8
+ 2 фото
Публичное предложение
5 814 000 ₽
Нежилое помещение с кадастровым № 38:18:030401:140, 81,1 м2....
Торги до: 12.05.26 10:00
Позвонить
Республика Башкортостан
1/27
+ 21 фото
Публичное предложение
5 679 000 ₽
Лот №1. Нежилое здание – проходная с кад. № 02:70:010301:412...
Торги до: 09.06.26 18:00
Позвонить
Московская область
Публичное предложение
639 023 ₽
Нежилое здание Кадастровый номер: 63:08:0116002:257 Площадь:...
Торги до: 05.04.26 10:00
Позвонить